Image1
Navalcarnero - Madrid
Image2
Navalcarnero - Madrid
Image3
Navalcarnero - Madrid
Image4
Las Rozas - Madrid
Image5
Las Rozas - Madrid
Image6
Las Rozas - Madrid
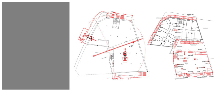
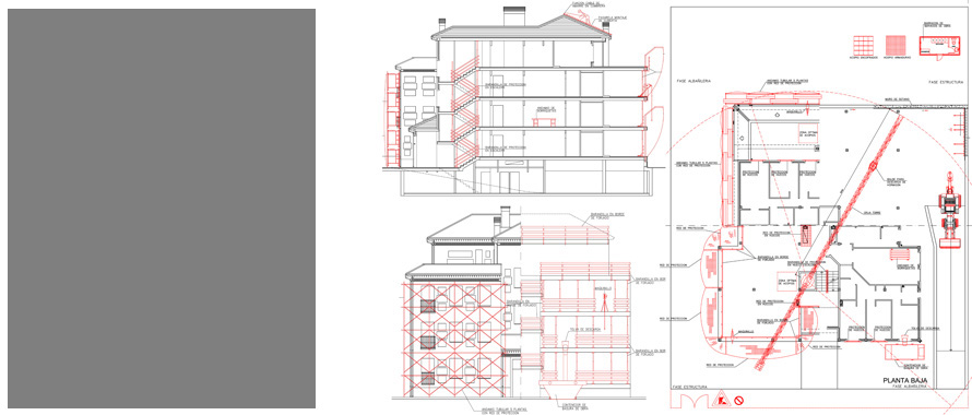
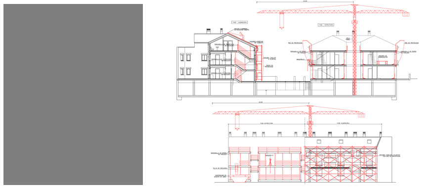
"Support, development and monitoring of the Study of Health and Safety in Construction.
Health and Safety Project required in construction management as well as Organizational chart and coordination works are provided."