español
english
Arquitecto en Madrid
ESTUDIO de ARQUITECTURA en MADRID
inicio
arquitecto
servicios
proyectos
contacto
Las Rozas de Madrid
Navalcarnero
San Martín de la Vega
Santa Cruz de la Zarza
Madrid / Otros
Imagen1
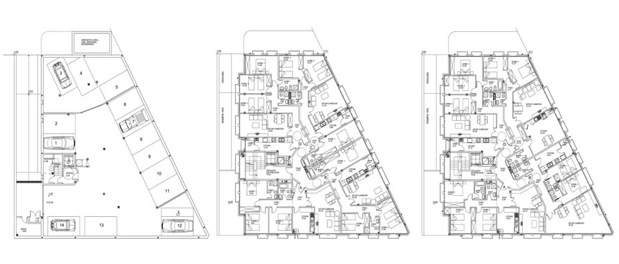
Edificio 8 Viviendas, Local, Garaje
C/Virgen de Peñarroya
Imagen2
Edificio 8 Viviendas, Local, Garaje
C/Virgen de Peñarroya
Imagen3
Edificio 8 Viviendas, Local, Garaje
C/Virgen de Peñarroya
Imagen4
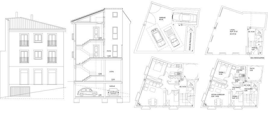
Edificio de 2 Viviendas, Local y Garaje
Plz. Constitución nº8 c.v. C/de la Tercia
Imagen5
Edificio de 2 Viviendas, Local y Garaje
Plz. Constitución nº8 c.v. C/de la Tercia
Imagen6
Nave industrial
C/ Academia de Infantería
<
>
Estudio Arquitectura - C/Peñalara nº20 - Las Rozas de Madrid (28231) Madrid - España
jlfervazquezarquitecto@gmail.com
tfno: 91 637 34 29
Web por AbrahamFG Architect
Este obra está bajo una
licencia de Creative Commons Reconocimiento-NoComercial-SinObraDerivada 3.0 Unported
.
inicio
arquitecto
servicios
proyectos
contacto
Proyectos en:
Las Rozas de Madrid
Navalcarnero
San Martin de La Vega
Santa Cruz de la Zarza
Madrid/Otros
José Luis Fernández Vazquez Arquitectos
Estudio de Arquitectura localizado en Madrid con una amplia experiencia en construcción y edificación residencial y pública.
C/Peñalara 20
Las Rozas de Madrid
28231
Madrid
España
Teléfono:
916373429